Objavte širokú ponuku záhradných domčekov a drevených záhradných domčekov na náradie, ktoré skvele doplnia vašu záhradu a poskytnú vám ideálny priestor na uskladnenie nástrojov, záhradného vybavenia alebo sa stanú obľúbeným miestom na oddych. Či už plánujete vytvoriť priestor na relax, miesto pre vaše hobby, alebo praktický úložný priestor, naše záhradné domčeky sú navrhnuté tak, aby dokonale zodpovedali vašim potrebám.
Naše záhradné chatky sú postavené z kvalitných drevených materiálov, aby boli odolné voči poveternostným podmienkam a vydržali funkčné dlhé roky. Ich pevná konštrukcia a moderný dizajn zároveň zaručujú, že sa stanú estetickým a praktickým doplnkom každej záhrady. Môžete si vybrať napríklad záhradné domčeky do 15m² alebo väčšie záhradné chatky do 25 m², podľa vašich potrieb.

Predstavujeme záhradný domček Cabin: Kompaktné riešenie pre váš priestor
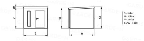
Aj keď máte na záhrade málo miesta, nemusí byť umiestnenie tohto praktického záhradného domčeka Cabin žiadny problém. Domček disponuje rozmermi 120x62 cm, vďaka čomu pôsobí mimoriadne kompaktne. Vďaka kompaktnému stavebnicovému systému s podlahou a strešnou lepenkou je možné tento záhradný domček postaviť naozaj rýchlo a jednoducho. Domček má veľkú úložnú plochu s veľkosťou 0,75 metrov štvorcových a ponúka približne 1,28 metrov kubických úložného priestoru. Steny s hrúbkou 14 mm vytvárajú veľmi stabilnú konštrukciu.
Technické špecifikácie a parametre domčeka Cabin
Pre lepšiu orientáciu v detailoch domčeka Cabin, prinášame prehľad jeho technických parametrov:
| Parameter | Hodnota |
|---|---|
| Č. výrobku | 8682849 |
| Rozmery hotového výrobku (š x v) bez presahu strechy | 120 x 62 cm |
| Vonkajšia šírka vr. presahu strechy | 134 cm |
| Vonkajšia hĺbka steny | 62 cm |
| Vonkajšia hĺbka vr. presahu strechy | 86 cm |
| Zastavaná plocha v m² | 0,75 m² |
| Vnútorný rozmer (ŠxH) | 118 cm x N/A |
| Obostavaný priestor | 1,28 m³ |
| Hrúbka steny | 14 mm |
| Výška bočnice | 168 cm |
| Výška hrebeňa | 206 cm |
| Podlaha | Áno |
| Plocha obvodovej steny | 6,62 m² |
| Plocha strechy | 1,24 m² |
| Hrúbka strechy | 12 mm |
| Zaťaženie snehom | 0,85 kN/m² |
| Presah strechy predný | 12 cm |
| Presah strechy bočný | 7 cm |
| Presah strechy zadný | 12 cm |
| Sklon strechy | 30 ° |
| Prevedenie krytiny | Žiadna |
| Prevedenie strechy | Drevotriesková doska |
| Strešné debnenie | Hoblinové dosky viazané syntetickou živicou |
| Potreba šindľov (balíky obsahujú 3 m²) | 1 |
| Potreba šindľov v m² | 1,8 |
| Druh výrobku | Záhradný domček |
| Vyhotovenie | Náraďový domček |
| Vhodné pre | Záhradné stroje, záhradný nábytok, záhradné náradie, dvojkolka |
| Základná farba | Drevo |
| Sériové vybavenie | Podlaha |
| Séria | Cabin |
| Tvar strechy | Sedlová strecha |
| Materiál | Drevo |
| Špecifikácia materiálu | Smrek |
| Prevedenie povrchovej úpravy | Žiadna |
| Tlakovo impregnované | Nie |
| Počet okien | Žiadna |
| Typ dverí | Jednoduché dvere |
| Priechodná šírka | 65 cm |
| Priechodná výška | 165 cm |
| Zabezpečenie | Petlica |
| Počet miestností | 1 |
| Hmotnosť | 75 kg |
Ďalšie informácie o výrobku nájdete v technickom liste.

Kvalita a konštrukcia drevených záhradných domčekov
Kvalita je u nás na prvom mieste! Naše drevostavby majú prémiovú kvalitu spracovania všetkých súčastí už v štandarde. Zákazníkov vždy upozorňujeme, aby sa pri výbere sústredili aj na detaily, nielen na rozmer drevostavby, pretože pekne vyzerajúci domček ešte nie je všetko, dôležitá je kvalita celku.
Pevnosť a odolnosť
- Impregnované terasové dosky sú ošetrené priamo vo výrobe.
- Masívna konštrukcia strechy so zaťažením minimálne 120-200 kg/m² je štandardom pri všetkých našich drevostavbách.
- Impregnované základové hranoly sú pripravené pre okamžitú inštaláciu. Aby sa naše drevostavby mohli hneď po doručení začať stavať, sú naše základové hranoly napustené ochrannou látkou proti plesniam a škodcom. Ostatné drevené plochy sa ošetria počas montáže a po nej.
- Závitové tyče v oporných stenách poskytujú lepšiu stabilitu a spevňujú konštrukciu stavby, čím zamedzujú dodatočným posunom masívnych dosiek v stenách. Aj pri pracovaní dreva vplyvom vlhkosti sa nestane, aby sa steny drevostavby posúvali. Stačí dotiahnuť spodné skrutky a stena bude opäť stiahnutá.
Okná a dvere
- Okná sú vybavené hliníkovým parapetom, ktorý chráni pred stekajúcou vodou.
- Okná s izolačným dvoj-sklom výrazne zvyšujú odolnosť voči poveternostným a teplotným vplyvom a umožňujú tak používať domček aj v chladnejších obdobiach. Najmä s aplikáciou dodatočného zaizolovania podlahy a strechy. Pri použití jednoduchého vykurovania sa teplo v domčeku udrží aj počas chladných mesiacov.
- Tvrdené bezpečnostné sklo vo dverách a oknách zaručuje dlhú životnosť a vysokú bezpečnosť. Tvrdené sklo je päťkrát pevnejšie ako bežné sklo. V prípade silného nárazu sa tvrdené sklo rozpadne na malé tupé kúsky a nerozbije sa na ostré črepiny ako bežné sklo.
- Používame dverové a okenné kovania nemeckej výroby.
Stavba záhradného domčeka Volovec 44 - 5x4 | Časozberné video od dreva.sk
Tipy pre výber ideálneho záhradného domčeka
Pri výbere záhradnej chatky je dôležité zvážiť niekoľko kľúčových aspektov, ktoré ovplyvnia jej funkčnosť a dlhodobú spokojnosť.
Účel a umiestnenie
Záhradné domčeky možno rozdeliť do dvoch hlavných kategórií podľa ich primárneho účelu:
- Prvou skupinou sú záhradné domčeky, ktoré majú slúžiť ako doplnková stavba k domu. Využívame ich ako domček na náradie, letnú kuchynku, pracovňu, domček pre deti alebo alternatívnu obývaciu miestnosť. Väčšinou sa jedná o záhradné domčeky do 25m².
- Druhou skupinou sú záhradné domčeky postavené ako samostatná stavba. Jedná sa o drevené chatky v záhradkárskych oblastiach, rekreačné chatky v horách, prípadne dovolenkové domčeky.
Dôležité kritériá pri výbere
- Hrúbka steny:
- Záhradné domčeky s hrúbkou steny 20mm sú vhodné najmä ako domček na náradie.
- Záhradné domčeky s hrúbou steny 28mm sú ideálne pre tých, ktorí hľadajú lacné záhradné domčeky. Tieto domčeky v sebe spájajú pomerne vysokú kvalitu, úctyhodnú životnosť a výhodnú cenu. Sú vhodné do záhradkárskych oblastí a na využitie prevažne v letných mesiacoch.
- Záhradné domčeky s hrúbkou steny 40-45mm majú dvojitú perodrážku a masívnu konštrukciu. Po zateplení sú vhodné aj na celoročné bývanie.
- Záhradné chatky s hrúbkou steny 70mm sú ideálne v prípade, že rozmýšľate nad chatkou nad 25m² a nechcete šetriť na jej kvalite. Stena hrubá 70mm má výborné izolačné vlastnosti, vysokú životnosť a pôsobí ako zrubový drevodom.
- Podlaha: Pri výbere záhradnej chatky je treba myslieť na jej podlahu - tá by mala byť súčasťou balenia a mala by byť aspoň 17mm hrubá.
- Výška bočnej steny: Výška bočnej steny (pozor, nie je to to isté ako výška hrebeňa strechy) by mala byť minimálne 195cm, aby ste sa v chatke nemuseli hrbiť a necítili sa v nej stiesnene.
- Okná a dvere: Nemali by ste šetriť na oknách, ktoré by určite nemali byť z plexiskla a mali by byť otváracie aspoň na ventilačku. Polohu dverí a okien je dobré situovať tak, aby ste mali dostatok súkromia. V prípade chatiek, ktoré majú slúžiť na celoročné využitie, voľte minimálne 2-sklo. Naša firma predáva chatky výhradne len s presklenými oknami. V prípade, že plánujete záhradnú chatku postaviť v záhradkárskej oblasti, odporúčame dokúpiť si z bezpečnostných dôvodov k chatke aj okenice.
- Terasa: Záhradné chatky s terasou sú veľmi obľúbené najmä kvôli ich všestrannému využitiu na posedenie vonku, niečo ako altánok. Pri výbere terasy je dobré myslieť na jej veľkosť - terasa by mala byť dlhá aspoň 1,5m.
Záruka kvality a služby nášho dodávateľa
Od roku 2002 sa zaoberáme výrobou, predajom a montážou záhradných domčekov, altánkov a domčekov z dreva za bezkonkurenčné ceny. Keďže si uvedomujeme, že záhradný domček alebo záhradná chatka je dlhodobá investícia, kladieme obrovský dôraz na čo najvyššiu kvalitu dreva a odbornú montáž.
Začínali sme ako malá rodinná firma skupovaním lacných záhradných domčekov z Poľska, no za 20 rokov pôsobenia sme sa vypracovali na jedného z najväčších výrobcov a predajcov kvalitných záhradných domčekov na Slovensku s certifikovanými dodávateľmi dreva z celého sveta. Aj vďaka tomu vám dnes môžeme predávať tie najlacnejšie záhradné chatky a drevené domčeky na slovenskom trhu.
Okrem najnižšej ceny vám ponúkame dopravu drevenej chatky s montážou kdekoľvek po Slovensku vždy zadarmo. Keďže si dôverujeme navzájom, nepožadujeme žiadne zálohy*. V našej ponuke nájdete drevené domčeky rôznych druhov a veľkostí. Keďže máme veľké slovo pri ich výrobe, viete si určiť hrúbky steny (20mm / 28mm / 40-46mm / 70mm). Rozhodnete sa aj, či chcete terasu. Každú našu chatku si môžete objednať na kľúč s montážou. Náš šikovný tím vám záhradný domček na kľúč zmontuje v priebehu pár hodín.

Príprava podkladu a stavebné povolenia
Pred objednaním domčeka musíte zabezpečiť, aby sa na miesto vykládky mohlo dostať nákladné vozidlo s nosnosťou 40 ton. Okrem toho by ste sa mali ešte pred samotnou stavbou bezpodmienečne uistiť, či na domček nepotrebujete stavebné povolenie.