Automatické zavlažovacie systémy sa stali neoddeliteľnou súčasťou moderných futbalových ihrísk, pričom zabezpečujú optimálne podmienky pre rast trávnika a jeho dlhodobú kvalitu. Správne navrhnutý projekt a efektívny rozpočet sú kľúčové pre úspešnú realizáciu takéhoto systému.
Prečo je automatická závlaha pre futbalové ihrisko kľúčová?
V posledných rokoch sa planéta neustále otepluje a vody padá z oblohy čoraz menej. Z tohto dôvodu je efektívne zavlažovanie trávnatých plôch, vrátane futbalových ihrísk, nevyhnutné. Automatický závlahový systém výrazne zjednoduší, skvalitní a zefektívni starostlivosť o trávnatú plochu ihriska. Výhodou takéhoto systému zavlažovania je jednak pravidelná automatická závlaha hracej plochy, ktorá zabezpečuje rýchlu regeneráciu trávnika a väčšiu trvácnosť.
V porovnaní s manuálnym zavlažovaním, pri ktorom bolo doteraz potrebné manuálne premiestňovať, rozťahovať a spúšťať zavlažovací bubon s hadicou, prináša automatizácia značné úspory času a námahy. Profesionálne vypracovaný návrh systému zaručuje, že sa už nikdy nebudete stretávať s nedostatočným tlakom na tryskách alebo dodatočným prerábaním. Všetko sa spraví na prvý raz a poriadne, čo prinesie dlhodobý úžitok.
Kvalitný závlahový systém udržuje rovnomerný a konštantný vzhľad trávnika počas celej sezóny. Umožňuje plnú kontrolu nad množstvom vody, ktoré sa aplikuje na ihrisko, a môžete ho prispôsobiť potrebám rastlín. Automatický závlahový systém udržuje pôdu vlhkú a vyváženú, čím Vám ušetrí množstvo cenného času, ktorý by ste inak strávili ručným zalievaním. Vďaka inteligentným programom môžete nastaviť systém tak, aby zavlažoval iba vtedy, keď to rastliny skutočne potrebujú, čím sa šetrí čas, námaha a aj starosti okolo toho, kedy zalievať ihrisko a kedy nie.
Z dlhodobého hľadiska Vám automatický závlahový systém ušetrí značnú časť financií, čo možno považovať za návratnú investíciu do budúcnosti. Odbremení Vás od starostlivosti o závlahu zelenej plochy, už nebudete tráviť čas sledovaním zrážok a rátaním spotreby vody, ani sa obávať, či ste rastliny zaliali príliš alebo málo. Automatický závlahový systém odbremení Váš chrbát i Vaše ruky, eliminujúc fyzickú námahu s nosením vody a ručným polievaním.

Príklady úspešnej realizácie
Projekt v Mani
V mesiaci august bol na miestnom futbalovom ihrisku zrealizovaný projekt zameraný na vybudovanie automatického zavlažovacieho systému hracej plochy. Dňa 2. augusta 2022 bol na futbalovom ihrisku v Mani nainštalovaný automatický systém závlahy celej jeho hracej plochy.
V zmysle vypracovanej projektovej dokumentácie bola na hracej ploche vykonaná inštalácia 24 postrekovačov, ktoré sú rozmiestnené na dostrek a tvoria štvorcový spon. Automatické ovládanie je riadené modulárnou ovládacou jednotkou a skupinou elektroventilov v šachtách umiestnených po okrajoch hracej plochy. Blokovanie závlahy počas prirodzených zrážok je riešené prostredníctvom zrážkového čidla.
Pôvodný systém mal problémy so zdrojom vody. Pred spustením čerpadla bolo vždy potrebné dopĺňať vodu do nasávacej vetvy a pomerne často čistiť nasávací kôš v potoku. Využitie takéhoto zdroja by nemohlo byť použité na nový plnoautomatický systém. Z tohto dôvodu sa mesto rozhodlo využiť ako efektívnejší zdroj vody studňu, z ktorej je voda čerpaná do 14m³ veľkej nádrže.
Na základe výsledku verejného obstarávania je hodnota závlahového systému 13 320,90 €. Na tento projekt obec získala dotáciu vo výške 10 000 € od Slovenského futbalového zväzu (SFZ) v rámci podpory výstavby a rekonštrukcie futbalovej infraštruktúry z projektu „Eurá z Eura“.

Projekt v Trnovci nad Váhom
Na futbalovom ihrisku v Trnovci nad Váhom sa začalo s inštaláciou automatických závlah trávnika, ktoré v budúcom roku nahradia doteraz používaný zavlažovací bubon s hadicou, ktorý bolo potrebné manuálne premiestňovať, rozťahovať a spúšťať.
V rámci projektu sa do hracej plochy umiestňujú zavlažovacie hadice, z ktorých budú napájané zavlažovacie trysky ukryté priamo v trávniku. Taktiež sa nahradia staré kovové prehrdzavené nadzemné nádrže na vodu podzemnými plastovými nádržami, v ktorých bude zhromažďovaná voda určená na zavlažovanie. Projekt je realizovaný vďaka dotácii Ministerstva financií SR.
Obec Trnovec nad Váhom a FK Dynamo Trnovec nad Váhom sa začiatkom roka 2022 spoločne zapojili do projektu s názvom „Eurá z Eura“, ktorý bol vyhlásený výkonným výborom Slovenského futbalového zväzu. Ich cieľom bolo podporiť futbalovú infraštruktúru oblastného futbalového zväzu a regeneráciu futbalovej plochy. Členovia Výkonného výboru Slovenského futbalového zväzu schválili návrh na poskytnutie finančného príspevku v projekte „EURÁ z EURA“ pre 226 uchádzačov, medzi ktorými bola aj obec Trnovec nad Váhom.
Anatomy Of A Sprinkler System
Komplexný proces návrhu závlahového systému
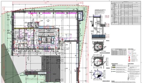
Pre dosiahnutie efektívnej závlahy športových ihrísk je kľúčovým faktorom správne navrhnutý projekt závlahy - závlahového systému. Profesionálne vypracovaná dokumentácia Vám poskytne presný prehľad o potrebných materiáloch, činnostiach a počte komponentov pre optimálne nastavenie celého závlahového systému. Projekt závlahy je prvým krokom k úspešnej realizácii závlahového systému.
Podklady potrebné pre vypracovanie projektu
Pre vypracovanie kvalitného návrhu automatickej závlahy je nevyhnutné poskytnúť detailné podklady, ktoré umožnia presné dimenzovanie a rozmiestnenie komponentov:
- Rozmery plochy: Čo najpresnejšie uveďte plochu ihriska alebo plochy, ktoré sa budú zavlažovať. Ideálny je podorys v PDF alebo DWG súbore, no akceptovaný je aj nákres na papieri a odfotený. Nie je potrebné, aby bol v mierke, ak budú všetky kóty vyznačené s reálnymi rozmermi. Čím viac rozmerov sa poskytne, tým lepší bude návrh. Rozdiel 5-10 cm nič nerieši (dá sa upraviť na tryske postrekovača), ale rozdiel 1-2 metre už vie urobiť problém (nedostrekovanie jednotlivých postrekovačov). Pre lepšiu predstavu je možné poslať aj fotografie pozemku.
- Zdroj vody: Uveďte, či sa bude závlaha realizovať na vodu zo studne alebo z vodovodu. Ak z vodovodu, je dôležité určiť tlak a prietok v mieste pripojenia na závlahu.
- Čerpadlo: Ak bude závlaha napájaná zo studne, je potrebné uviesť parametre studne (hĺbka studne, vodný stĺpec, prípadne výdatnosť studne). Ak je už čerpadlo inštalované, je potrebné poznať jeho výkon (ideálne odfotiť štítok čerpadla) a typ ovládania (tlakovým alebo prietokovým spínačom). V prípade, že čerpadlo nemáte, navrhneme Vám vhodné čerpadlo podľa požiadaviek závlahy.
- Filtrácia: Uveďte, či je filtrácia už nainštalovaná. Je potrebná, aby sa trysky na postrekovačoch nezanášali.
- Prevýšenie: Ak je na pozemku prevýšenie, je potrebné naznačiť kde a v akom rozsahu.
- Ovládacia jednotka: V projekte je potrebné zaznačiť, kde bude umiestnená ovládacia jednotka (zvyčajne technické miestnosti, garáže). Na výber sú 230V aj batériové ovládacie jednotky. Treba tiež určiť, či bude interiérová alebo exteriérová.
V prípade, ak máte podorys ihriska v DWG formáte, jeho zaslanie urýchli proces návrhu.
Výstup projektovej dokumentácie
Výsledkom projektovej práce je komplexný návrh so zakreslením inštalácie jednotlivých rozvodov potrubia, umiestnenia a polohy ventilovej šachty, riadiacej jednotky a elektrického vedenia od riadiacej jednotky k elektromagnetickým ventilom. Samozrejmosťou je zakreslenie pozícií jednotlivých postrekovačov, ich označenie, ako aj ich farebne odlíšené rozdelenie do jednotlivých sekcií/zón.
Súčasťou vypracovania je aj výkaz výmer, t.j. položkovitý rozpis potrebného materiálu a podrobný rozpis odporúčaných cien prác súvisiacich s realizáciou závlahy. Projekty sa vyhotovujú zvyčajne v priebehu 3 až 5 pracovných dní, v závislosti od aktuálnej vyťaženosti kapacít návrhárov.

Náklady a možnosti financovania
Stanovenie ceny projektovej dokumentácie
Cena projektovej dokumentácie pre závlahu k rodinnému domu je napríklad 82 EUR s DPH, ktorá zahŕňa položkovitý rozpis potrebného materiálu a podrobný rozpis odporúčaných cien prác súvisiacich s realizáciou závlahy. Avšak, v prípade väčších projektov - zavlažovaných plôch nad 1000 m², ako sú futbalové ihriská, sa cena vyrátava individuálne a je dohodnutá vopred. Táto služba je dostupná aj pre záhradných a závlahových realizátorov. Projekt sa začne spracovávať po prijatí platby za projektovú dokumentáciu.
Existuje aj možnosť vrátenia ceny za projekt: pri odobratí celého navrhnutého závlahového sortimentu sa Vám cena za projekt vráti v plnej výške návrhu vo forme zľavy. Podmienkou 100% zľavy je kúpa celého materiálu z návrhu.
Možnosti získania dotácií
Pre futbalové kluby a obce sú často dostupné dotačné programy, ktoré môžu výrazne znížiť finančnú záťaž pri investícii do závlahového systému. Príklady úspešného financovania ukazujú možnosti:
- Obec Maná získala dotáciu vo výške 10 000 € od Slovenského futbalového zväzu (SFZ) v rámci projektu „Eurá z Eura“.
- Obec Trnovec nad Váhom a FK Dynamo Trnovec nad Váhom sa zapojili do rovnakého projektu „Eurá z Eura“, ktorý bol vyhlásený výkonným výborom Slovenského futbalového zväzu, s cieľom podporiť futbalovú infraštruktúru a regeneráciu plochy. Tento projekt je tiež realizovaný vďaka dotácii Ministerstva financií SR.
Členovia Výkonného výboru Slovenského futbalového zväzu schválili návrh na poskytnutie finančného príspevku v projekte „EURÁ z EURA“ pre 226 uchádzačov, čo svedčí o širokej podpore takýchto investícií.

Prečo zvoliť profesionálov a systém Hunter?
Naše projekčné oddelenie disponuje dlhoročnými skúsenosťami a vypracúva projekty závlahových systémov pre rozsiahle plochy, ako sú futbalové ihriská. Futbalové kluby sa na nás veľmi často obracajú so spracovaním cenovej ponuky, ako aj projektu závlahového systému. Radi vypracujeme projekt akéhokoľvek závlahového systému alebo detailu pre Vami riešenú plochu. Spolupracujúcim realizačným a inštalačným firmám vypracujeme projekt automatického závlahového systému TORO na základe ich žiadosti.
Rozhodnite sa pre závlahový systém od popredného výrobcu Hunter. Zabezpečíme Vám všetko od projektu po realizáciu a následný záručný a pozáručný servis. Ak chcete mať krásny a zdravý trávnik, ktorý bude trvalo udržateľný vďaka prvotriednej starostlivosti o celú flóru, rozhodnite sa pre inštaláciu automatického závlahového systému Hunter.
Projekt závlahového systému Hunter zahŕňa presný kompletný zoznam činností, materiálu a potrebných komponentov, čím Vám pomáha lepšie plánovať finančné prostriedky. Je nevyhnutným predpokladom pre správne technické riešenie a následnú bezproblémovú realizáciu závlahy. S automatickým závlahovým systémom Hunter a jeho realizáciou podľa projektu od našej spoločnosti ušetríte aj v budúcnosti na údržbe a opravách. Spoľahlivo fungujúci a efektívny závlahový systém Hunter už presvedčil státisíce klientov po celom svete.
Pre začatie návrhu si môžete stiahnuť a vyplniť dotazník pre návrh automatického závlahového systému Hunter. Na základe získaných údajov Vám vypracujeme projekt. Tiež môžete vyplniť formulár so žiadosťou o telefonickú konzultáciu alebo obhliadku konkrétnej lokality pre vypracovanie projektu. S dlhoročnými skúsenosťami, zárukou najvyššej kvality od spoločnosti Hunter, profesionálnym prístupom a technickými znalosťami o značke Hunter, ponúkame efektívne riešenia pre každého. Návrh projektu má byť kvalitný, inteligentný, úsporný a zároveň efektívne zrealizovateľný.

tags: #umela #zavlaha #futbaloveho #ihriska #rozpocet