Rozmýšľali ste nad tým, že by ste si chceli na svojom pozemku postaviť záhradný domček alebo domček na náradie za málo peňazí? Ak hľadáte, ako postaviť záhradný domček svojpomocne, existujú jednoduché postupy, ktoré zvládnete aj bez väčších skúseností. Stavba záhradného domčeka svojpomocne nemusí byť zložitá, ak si správne naplánujete postup a výber materiálov. Kľúčom k úspechu je najmä dobré plánovanie, výber vhodných materiálov a správny postup.
Prečo sa pustiť do stavby záhradného domčeka?
Či už potrebujete uskladniť náradie, vytvoriť si dielňu, alebo snívate o vlastnom tichom mieste na prácu či relax, záhradný domček môže byť ideálnym riešením. Malý domček je postavený tak precízne ako veľká chata. Záhradný domček sme sa rozhodli postaviť k malému modernému rodinnému domu na malom pozemku, aby sme mali kam odložiť kosačku, bicykel, náradie a v zime nechať prezimovať niektoré rastliny. Od začiatku mal slúžiť ako malý sklad a nebol plánovaný ako dielňa. Či už bývate v rodinnom dome, alebo máte rekreačnú chatu v záhradkárskej kolónii - vždy je potrebný priestor na uloženie náradia či techniky.

Typy záhradných domčekov a moderné alternatívy
Typov záhradných domčekov, ktoré si môžete postaviť svojpomocne alebo zakúpiť, je niekoľko. Ak premýšľate, z čoho postaviť záhradný domček, drevo patrí medzi najdostupnejšie a najpraktickejšie riešenia.
Tradičné materiály: drevo, kov a plast
- Plastový záhradný domček je najlacnejším variantom, nesmierne jednoduchým na montáž a na samotnú údržbu.
- Kovový záhradný domček je známy svojou odolnosťou voči poveternostným podmienkam a jednoduchou údržbou, čo mu samozrejme pridáva na životnosti. Spomedzi dreveného a plastového typu vám ten kovový môže vydržať omnoho dlhšie. Modely vyrobené z oceľového plechu sú zvyčajne cenovo výhodnejšie ako modely vyrobené z dreva a nevyžadujú žiadne opatrenia týkajúce sa starostlivosti. Kovové domčeky sú dostupné v mnohých variantoch, farbách a dizajnoch.
- Drevené záhradné domčeky alebo domčeky na náradie sa stali najobľúbenejším typom takýchto záhradných stavieb, ktoré sa týčia vo väčšine záhrad. Získali si priazeň tým, že sú oproti kovovým konštrukciám lacnejšie a prekvapia vás aj slušnou životnosťou, ak sa o ne viete patrične starať, čo zahŕňa impregnáciu alebo lakovanie. Drevené záhradné domčeky sú vo všeobecnosti považované za esteticky príjemnejšie ako plachtové haly, pretože drevo má prirodzený vzhľad, ktorý sa hodí do záhrady.
- Záhradný domček z OSB dosiek je tiež veľmi obľúbeným riešením, cenovo dostupným a jednoduchým na realizáciu.
Inovatívne riešenia: plachtové haly a lodné kontajnery
Jednou z možností, ktorú si môžete tiež zvoliť ako alternatívu ku klasickým záhradným domčekom, sú plachtové haly, ktorých využitie je skutočne široké. Tieto haly sú vlastne jednoduché kovové pozinkované konštrukcie, prekryté veľmi odolnými PVC plachtami. Podľa našich skúseností sú odolné voči poveternostným podmienkam a poskytujú dostatočnú ochranu pred dažďom, vetrom a slnkom. Ich ďalšou bezkonkurenčnou výhodou je napríklad aj rýchla montáž, poprípade demontáž, čo určite oceníte v prípade, že si chcete svoj záhradný domček postaviť svojpomocne v čo najkratšom možnom časovom intervale. Takáto montáž plachtovej haly vám môže zabrať len jeden jediný deň. Nemusíte si k nej dokupovať žiadne ďalšie stavebné materiály, okná, skrutky, ani zháňať všemožné náradie.
Aj keď sa plachtové haly vyznačujú dlhou životnosťou, v porovnaní s murovanými stavbami je ich životnosť podstatne kratšia. Ďalšou nevýhodou môže byť aj estetika, keďže plachtová hala má skôr priemyselnejší vzhľad. Tradičné záhradné domčeky si vyžadujú dlhodobú prípravu a stavebné práce, čo môže trvať aj niekoľko mesiacov. Plachtová hala ponúka rýchlu alternatívu, postavená môže byť oveľa rýchlejšie, čo umožňuje mať váš záhradný domček hotový za pár dní namiesto niekoľkých mesiacov. Môžete tak ušetriť čas, peniaze a energiu.
Ďalšou skvelou a modernou alternatívou sú lodné kontajnery.
GARDEON | Ako si zútulniť garáž? - Inšpirácia od nášho zákazníka
Kľúč k úspechu: Dôkladné plánovanie
Skôr než sa pustíte do samotnej stavby, oplatí sa venovať čas dôkladnému plánovaniu. Ide o kľúčový krok pre úspešnú realizáciu záhradného domčeka.
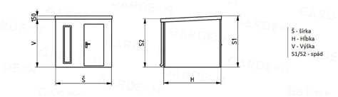
Definujte účel a rozmery
Základom je ujasniť si, na čo budete domček využívať. Iné požiadavky má jednoduchý sklad na náradie a úplne iné napríklad dielňa, hobby priestor alebo záhradná kancelária. Od toho sa odvíja nielen veľkosť, ale aj celkové riešenie stavby. Menšie domčeky sú ideálne na uskladnenie základného náradia, stredne veľké ponúkajú priestor aj na hobby aktivity a väčšie domčeky môžu fungovať ako plnohodnotná miestnosť na prácu či oddych, alebo dokonca aj na bývanie.
Výber vhodného umiestnenia
Dôležitým faktorom je aj umiestnenie domčeka. Vyberte si vhodné miesto na vašom pozemku, s ohľadom na odvod dažďovej vody. Pri plánovaní netreba zabúdať ani na okolie - je dobré dodržať primerané odstupy a myslieť aj na to, aby domček napríklad zbytočne netienil susedným pozemkom. Samostatne stojacu kôlňu si môžete umiestniť kdekoľvek na pozemku, napríklad bližšie k úžitkovým hriadkam.
Legislatívne požiadavky a stavebné povolenie
Ešte pred samotnou stavbou by ste si mali overiť na stavebnom alebo obecnom úrade, či na takúto stavbu potrebujete stavebné povolenie. Menšie záhradné domčeky síce často nevyžadujú stavebné povolenie, no vo väčšine prípadov je potrebné aspoň ohlásenie drobnej stavby. Podmienky sa môžu líšiť, preto je najlepšie informovať sa na miestnom úrade.
Drobná stavba je z pohľadu zákona nekonfliktná, ak spĺňa nasledujúce kritériá:
- jej zastavaná plocha je menšia ako 25 metrov štvorcových
- stavba nepresiahne výšku 5 metrov
- stavba je jednopodlažná
- záhradný domček sa nenachádza bližšie ako 2 metre od susedskej hranice (odporúča sa dodržať minimálnu vzdialenosť 3 m)
- domček nebude slúžiť na obchodné, podnikateľské alebo iné, ako doplnkové účely
V každom prípade však stavbu musíte ohlásiť obci alebo mestu, aby bola legálna. Myslite na to, že zákon týkajúci sa drobných stavieb sa môže kedykoľvek zmeniť, preto si overte aktuálne podmienky na najbližšom stavebnom úrade.

Pevné základy: Neoddeliteľná súčasť každej stavby
Ak by sme mali vybrať jednu časť stavby, ktorú sa naozaj neoplatí podceniť, je to práve základ. Ten zabezpečuje stabilitu celej konštrukcie, chráni domček pred vlhkosťou a výrazne ovplyvňuje jeho životnosť.
Príprava terénu a výber základu
Ešte pred samotnou realizáciou základu je potrebné dôkladne zhodnotiť terén. Ideálne miesto by malo byť čo najrovnejšie, prípadne jednoducho upraviteľné. Veľkou výhodou je mierne vyvýšenie, ktoré pomáha odvádzať dažďovú vodu. Ak je pôda dostatočne tvrdá a nehrozí, že by sa pod váhou domčeka nerovnomerne znižovala, miesto je vhodné na stavbu.
Výber konkrétneho riešenia závisí najmä od veľkosti domčeka a jeho využitia:
- Štrkové lôžko je najjednoduchšou voľbou a hodí sa skôr pre menšie záhradné domčeky. Pre malý sklad na náradie postačí už aj vrstva štrku, ktorú spevníte vibračnou doskou.
- Betónová platňa alebo bodový či pásový základ z betónu je najlepšou voľbou po výmere stavebného miesta, zabezpečuje najvyššiu stabilitu.
- Betónové pätky predstavujú kompromis medzi cenou a stabilitou.
- Drevená platforma osadená na zemných skrutkách je výhodou, ak nechcete betónovať a potrebujete základy zhotoviť takmer kedykoľvek, bez ohľadu na počasie.
Pre náš záhradný domček s bočnou strechou sme zvolili kombináciu základovej dosky a bodového základu.
Hydroizolácia základov
Okrem samotného základu je veľmi dôležité myslieť aj na ochranu dreva pred vlhkosťou. Drevo by nikdy nemalo byť v priamom kontakte so zemou, preto sa medzi základ a konštrukciu vkladá hydroizolačná vrstva. Môže ísť o fóliu, asfaltovaný pás ("ipa") položený na betónovej doske, alebo gumové podložky, ktoré zabraňujú prenikaniu vlhkosti a tlmia kročajový hluk.
Mierna spodná izolácia domčeku neuškodí. Nejde o skutočnú izoláciu za pomoci bežne používaných polystyrénov, ale o odsadenie domčeka od zeme tak, aby sa nedotýkal chladného podkladu. Využite niekoľko hranolov, ktoré poslúžia nielen na odsadenie, ale aj na uchytenie samotného záhradného domčeka. Hranoly môžete po obvode uzatvoriť drevenými lištami, aby medzi nimi neprefukoval vietor. Priestor medzi domčekom a zemou možno vyplniť zbytkovým materiálom, ako sú piliny, molitan, prípadne spodnú dosku, na ktorej bude záhradný domček, môžete obiť sklenenou vatou. Takáto izolácia pomôže chrániť skladované veci pred mrazom a vlhkosťou.

Materiály na stavbu a ich ochrana
Výber správnych materiálov je jedným z najdôležitejších krokov pri stavbe záhradného domčeka. Práve od neho závisí nielen vzhľad, ale aj odolnosť, stabilita a životnosť celej stavby.
Drevené konštrukčné prvky
Drevo pôsobí prirodzene, dobre zapadne do záhrady a zároveň sa s ním pomerne jednoducho pracuje. Pri výbere je však dôležité sledovať nielen cenu, ale aj vlastnosti konkrétneho typu dreva. Najčastejšie sa používa smrekové alebo borovicové drevo. Veľmi obľúbené materiály na stavbu kompaktných záhradných domčekov sú tatranské profily, ktoré majú široké použitie a rôzne typy, napríklad s pevnou dušou. Ak chcete svoj záhradný domček skutočne vyšperkovať, pridať k nemu aj terasku alebo letnú kuchynku, využiť môžete terasovú podlahu. Tento drevený profil je typický svojimi drážkami, vďaka ktorým má ako podlahový materiál protišmykové vlastnosti a veľmi jednoducho sa čistí alebo ošetruje. Ak máte znížený rozpočet, môžete siahnuť po profiloch nižšej akosti alebo akciovom materiáli.
Ochrana dreva pre dlhú životnosť
Samotné drevo však nestačí. Kľúčová je jeho správna ochrana. Bez nej by bolo vystavené dažďu, slnku aj škodcom, čo by výrazne skrátilo jeho životnosť. Základom je impregnácia, ktorá chráni drevo pred plesňami a hmyzom, a potom aj lazúra alebo náter, ktoré ho chránia pred UV žiarením a vlhkosťou. Pravidelnou starostlivosťou o drevený domček výrazne zvýšime jeho životnosť. Povrchová úprava by sa mala pravidelne obnovovať, ideálne každých pár rokov, alebo minimálne jeden náter každý rok. Pred každým náterom povrch dôkladne očistíme, prebrúsime a vyhladíme. Dôležitou zásadou je nevracať sa a neopravovať nezaschnutý náter, ale počkať, kým vyschne, a až potom robiť korektúry. Dnes sa dajú použiť už aj mnohé farebne ladené konzervačné nátery, lazúry, farby a oleje.

Strešné krytiny a spojovací materiál
Okrem dreva zohrávajú dôležitú úlohu aj ďalšie materiály, ktoré dotvárajú celú stavbu. Veľmi dôležitá je najmä strecha, ktorá chráni domček pred dažďom a snehom. Ako skvelá strešná krytina je napríklad vlnitý plech, ale najčastejšie možnosti sú aj asfaltové šindle alebo pásy. Na prvý pohľad nenápadné, no mimoriadne dôležité sú aj spojovacie prvky. Práve tie držia celú konštrukciu pohromade a zabezpečujú jej pevnosť. Odporúča sa používať pozinkované alebo nerezové skrutky a klince a kovové spojky a rohy na spevnenie konštrukcie. Tieto materiály sú odolné voči korózii, čo je v exteriéri kľúčové. Nezabudnite ani na ukončovacie lišty a kvalitné podkladové laty.
Všeobecný postup stavby dreveného záhradného domčeka
Stavba záhradného domčeka svojpomocne je skvelý spôsob, ako si vytvoriť praktický priestor vo vašej záhrade. Tu sú základné kroky, ktoré vám pomôžu pri montáži.
Krok 1: Príprava podkladu a hydroizolácia
Na začiatku je dôležité ešte raz skontrolovať, či je podklad rovný a stabilný. Ak by bol čo i len mierne naklonený, mohlo by to neskôr spôsobiť problémy pri skladaní celej konštrukcie. Pred samotnou montážou sa na základ zvyčajne ukladá hydroizolačná vrstva (napríklad fólia), ktorá ochráni drevo pred vlhkosťou prenikajúcou zo zeme. Tento krok býva často podceňovaný, no má zásadný vplyv na životnosť domčeka.
Krok 2: Vytvorenie podlahového rámu a podlahy
Ďalším krokom je vytvorenie podlahového rámu. Ten sa skladá z drevených hranolov, ktoré tvoria základ celej konštrukcie. Je potrebné ich presne vyrovnať a pevne ukotviť k podkladu. Dbajte na rovinu a kolmosť konštrukcie. Na pripravený rám sa následne upevnia podlahové dosky alebo OSB dosky. Výsledkom by mala byť pevná a rovná plocha, na ktorej bude stáť celý domček.
Krok 3: Montáž stenových konštrukcií
Po dokončení podlahy prichádza na rad stavba stien. Pri vlastnej stavbe je potrebné vytvoriť rám z drevených hranolov a opláštiť ho doskami. Pri montáži stien je dôležité dodržať pravé uhly, priebežne kontrolovať rovinu a jednotlivé časti pevne spájať. Steny sa postupne upevňujú k podlahe a navzájom medzi sebou, čím vzniká základná kostra domčeka.
Krok 4: Stavba strešnej konštrukcie
Keď sú steny hotové, nasleduje strecha. Najskôr sa osadia krokvy, ktoré tvoria nosnú konštrukciu. Na ne sa upevňuje záklop (napríklad z dosiek alebo OSB), ktorý tvorí podklad pre strešnú krytinu. Konštrukciu strechy si pripravíte jednoduchým kladením tenších strešných latí s približne polmetrovými medzerami. Aby ste predišli ich praskaniu, odporúčame vám predvŕtať ich vopred. Nakoniec sa uloží samotná krytina, ktorú následne priskrutkujte na túto pripravenú konštrukciu. Strecha by mala mať mierny sklon, aby voda mohla bez problémov odtekať. Výhoda vlastnej výroby kôlne je aj v tom, že si môžeme určiť, ako bude orientovaná strecha a kam dáme dvere.
Krok 5: Osadenie dverí a okien
Po dokončení hlavnej konštrukcie prichádza na rad osadenie dverí. Pri drevenom záhradnom domčeku sú veľmi dôležité aj dokončovacie práce. Tento krok si vyžaduje presnosť, pretože nesprávne osadenie môže spôsobiť problémy pri otváraní alebo netesnosti. Dôležité je správne vyrovnať rámy, okná a dvere pevne uchytiť a dôkladne ich utesniť proti vode a vetru.
Krok 6: Finálne spevnenie a dokončovacie práce
Na záver je dobré prejsť celú konštrukciu a skontrolovať všetky spoje. Prípadné nedostatky sa oplatí opraviť hneď, kým je všetko ešte dobre prístupné. Dotiahnite skrutky, spevnite rohy napríklad kovovými spojkami a skontrolujte celkovú stabilitu stavby. Potom prichádzajú na rad dokončovacie práce, ako je pripevnenie ukončovacích líšt a aplikácia farby na ochranu proti poveternostným vplyvom. Ukotvite domček pomocou uholníkov proti búrke. Rozmiestnite drvený kameň alebo štrk ako zábranu proti striekaniu a spevnite a zarovnajte zeminu okolo domčeka.
GARDEON | Ako si zútulniť garáž? - Inšpirácia od nášho zákazníka
Inšpirácia a detailná realizácia: Moderný záhradný domček s inteligentnými prvkami
Majiteľovi ležalo na srdci najmä to, aby pri dome stála vkusná stavbička, ktorá spríjemní vzhľad malej záhrady. Od začiatku mu bolo jasné, že chce, aby bol pekný zvnútra aj zvonku. Aj keď je to možno nezvyčajné, pri tejto stavbe bol najdôležitejší dizajn a praktickosť bola až na druhom mieste. Celú stavbu zrealizoval sám. Po zvažovaní sa rozhodol pre betónový základ, steny z Ytongu a drevený strop.
Príprava základov a múrov
Rozmer murovanej časti je 2 × 3 m, celkový rozmer domčeka je 3,8 m × 2 m. Základ bol kopaný do hĺbky asi 60 - 70 cm. Samozrejme, bola použitá kari rohož. Na betónový základ prišiel asfaltový penetračný náter a naň „ipa“ (asfaltovaný pás), ktorý bol daný rovno na celú betónovú dosku. Na prípravu betónového základu bol použitý šalung z dosiek 20 × 250 mm. Debnenie je hlbšie v zemi, takže dodatočná opora nie je potrebná a betón dosky neroztiahne.
Pomocou drevených tyčiek a špagátu bola nameraná budúca stavba tak, aby boli zachované pravé uhly. Dôležité je, aby sedeli uhlopriečky. Následne bol nalepený najvyšší roh a ostatné boli dané do roviny k nemu. V betónovom venci sú závitové tyče M12, ktoré držia pomúrnice vysoké 100, resp. 60 mm. Hornú vrstvu pórobetónových tvárnic bol vyrezaná do tvaru U, do medzery bola daná betonárska oceľ (roxor) a zaliala betónom, čím sa stavba spevnila. Dôležité je previazať každý rad a stále kontrolovať rovnosť stien.

Strecha s predĺženým prístreškom
Pomúrnica je na jednej strane vysoká 10 cm a na druhej 6 cm, čím sa vytvoril mierny sklon strechy. Na to prišli priečne hranoly 80 × 60 mm. Na ľavej strane prečnievajú kvôli otvorenému prístrešku (predĺženiu zastrešenia). Z boku je strecha domčeka predĺžená, čím sa vytvorilo malé vonkajšie zastrešenie na záhradné náradie. Z jednej strany bolo zastrešenie podporené stĺpom z hranola 12 × 12 cm. Doskami OSB boli z bokov uzavreté otvory, ktoré vznikli kvôli strešným trámom po obvode domčeka. Ako krytina bol použitý asfaltový šindeľ čiernej farby. Po bokoch boli škáry vytmelené strešným tmelom.
Fasáda a okenné otvory
Na materiál fasády sa rozhodol využiť kompozitné panely s hrúbkou 3 mm. Ide o sendvičové panely (hliníkový plech z oboch strán a vo vnútri plastové jadro), ktoré boli lepené polyuretánovým lepidlom na báze MS polymérov na hliníkový rošt. Na steny boli priskrutkované hliníkové profily 60 × 30 mm, pod ktoré bol ešte uložený penový pás, používaný na SDK profily. Na ľavú časť domčeka boli naskrutkované najprv hranoly s hrúbkou 35 mm a potom nehrdzavejúcimi skrutkami tatranský profil, ktorý bol napustený olejom na drevo Osmo. V domčeku je jedno okno 80 × 60 cm a to isté plexisklo bolo použité aj na časť prednej strany domčeka.

Výroba a osadenie dverí
Zárubňa na dvere bola vyrobená zo smrekového hranola 140 × 60 mm, do ktorého boli zafrézované drážky na skryté dverové pánty zn. Tectus 360. Dvere boli zhotovené zo smrekových hranolov (rozmery 30 × 50 cm) spojených skrutkami a lepidlom na drevo, medzi ktoré bol vložený polystyrén. Zárubne boli natreté ochranným olejom na drevo v rovnakom odtieni ako dvere. Zatvorené dvere lícujú s murivom z pórobetónu. Zámok na dverách je elektromagnetický, ako sa zvyčajne používa na vchodových dverách do panelákov.
Inteligentná elektroinštalácia a vnútorné vybavenie
Keďže celý dom je inteligentný so systémom Fibaro, majiteľ chcel ho rozšíriť aj do záhradného domčeka. Elektrina v domčeku bola od začiatku plánovaná komplikovanejšie, ako bežne v záhradných domčekoch býva. K dispozícii je 5 zásuviek. Cez inteligentný systém Fibaro možno ovládať čerpadlo a jednotlivé okruhy závlahy (vypínače sú pod elektrickou skrinkou), ďalej osvetlenie vo vnútri - bodové svetlá aj predprípravu na pás LED, ako aj vonkajšie osvetlenie pod prístreškom z boku domčeka. Kúrenie je zabezpečené keramickým vykurovacím panelom, ktorý je taktiež ovládaný Fibarom. V domčeku je umiestnené „oko“ - senzor, ktorý meria teplotu, svetlo, pohyb a otras, vďaka ktorému sa ovláda teplota. Taktiež je pripojený na domový alarm.
Strop je zateplený minerálnou vlnou hrúbky 80 mm v dvoch vrstvách. Následne bola na strop pripevnená konštrukcia na sadrokartón. V strope sú otvory a kabeláž pre bodové svetlá LED. Sadrokartón je aj na stenách, na jeho upevnenie bola použitá polyuretánová (PUR) pena. Spoje a kúty boli upravené páskou a tmelom. Na podlahu bola uložená 22 mm doska OSB, ktorá bola tiež nalepená penou PUR. Pod laminátové parkety určené na zvýšenú záťaž bola položená penová podložka z polyetylénu (PE).

Integrovaný vyvýšený záhon
Za domčekom je vyvýšený záhon, ktorý je jeho súčasťou. Toto bola podmienka manželky, keďže chcela mať v záhrade malý záhon a majiteľ nechcel, aby ho bolo vidno. Záhon je pripojený k domčeku z bočnej strany, ktorá je menej viditeľná pri pohľade zozadu. Na jednej strane je naskrutkovaný do domčeka, z druhej sedí na zemných klinoch. Je zhotovený zo smrekových latiek hrubých 30 mm. V strede je vystužený dvoma priečnymi hranolmi, ktoré sú uchytené v domčeku. Drevo záhona je natreté dvoma vrstvami lazúry. Záhon je z vnútornej strany zakrytý nopovou fóliou.

Špeciálny projekt: Detský záhradný domček
Malý, útulný priestor, ktorý si deti vedia prispôsobiť svojim predstavám a užívať si zábavu so svojimi kamarátmi. Nápad vytvoriť si domček je na svete, ale kam ho umiestniť?
Umiestnenie a základná konštrukcia
V prvom rade sa poobzerajte po svojej záhrade, detský záhradný domček môže byť rôznych rozmerov, ale určite si takú veľkosť, ktorá zapadne do priestoru. Deti by v jeho okolí mali mať dostatok miesta na hranie a zároveň by vaša záhrada mala stále pôsobiť vzdušne a nepreplnene. Miesto už máte, teraz je potrebné vytvoriť predbežný návrh a popremýšľať o potrebných materiáloch na jeho výstavbu.
Pripravené hranoly si musíte narezať do potrebnej dĺžky, aby ste z nich vedeli pripraviť základnú konštrukciu domčeka. Konštrukcia je oporou celej stavby, preto je veľmi dôležité dbať na stabilný základ a pevné ukotvenie. Na takýto podklad môžete urobiť betónový základ tak, že si vykopete otvor pod každým rohom a zasypete betónom, alebo môžete použiť betónové pätky, do ktorých navŕtate ukotvenie.
Steny, strecha a prístup
Keď máte konštrukciu hotovú, prichádza na rad obvodový rám. Ak ste sa rozhodli pre vyvýšený domček, pripevníte obvodové hranoly asi do polovice výšky konštrukcie. Na vrchol konštrukcie pripevníte strešné hranoly, stojky a nosníky. Steny a strechu olatujte s ohobľovanými doskami. Myslite na otvor pre vstup, poprípade výstup na šmýkačku a samozrejme otvor na okno. Aby sa deti vedeli dostať do domčeka, ešte vám chýba prichytenie a ukotvenie schodov.
