Plechové záhradné domčeky predstavujú spoľahlivé riešenie pre každého, kto potrebuje bezpečný a odolný priestor na uloženie vybavenia v exteriéri. Kvalitný záhradný domček z kovu chráni náradie, techniku aj sezónne doplnky pred dažďom, snehom a slnečným žiarením. Je určený pre používateľov, ktorí uprednostňujú pevnosť a minimálne nároky na údržbu. Kovové záhradné domčeky si zachovávajú stabilitu aj pri dlhodobom používaní a sú vhodné na celoročné využitie.

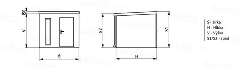
Technická špecifikácia modelu 257x205x202 cm
Tento typ domčeka sa vyznačuje robustnou konštrukciou a praktickými rozmermi, ktoré sú optimalizované pre bežnú záhradnú techniku. Konštrukcia a steny domčeka sú vyrobené z kvalitnej, pozinkovanej ocele v hrúbke 0,25 mm, ktorá je odolná voči korózii a zabezpečuje pevnosť celého objektu.
| Parameter | Hodnota |
|---|---|
| Šírka | 205 cm |
| Dĺžka | 257 cm |
| Výška | 202 cm |
| Zaťaženie strechy | 50 kg/m² |
| Materiál | Pozinkovaná oceľ |
Hlavné výhody a funkčné prvky
- Posuvné dvere: Výhodou domčeka sú praktické, posuvné dvere, ktoré šetria miesto pri otváraní a umožňujú lepšie zagospodárenie priestoru.
- Ventilačný systém: Užitočné vetracie otvory zabezpečujú cirkuláciu vzduchu a sú umiestnené nad posuvnými dverami, čo zabraňuje hromadeniu vlhkosti.
- Jednoduchá montáž: Stavba nevyžaduje betónované základy ani náročné stavebné úpravy. Domček možno položiť na existujúci povrch alebo štrkový či pieskový podklad.
- Bezpodlahová konštrukcia: Absencia podlahy umožňuje inštaláciu na akýkoľvek rovný podklad.
Stavba záhradného domčeka Volovec 44 - 5x4 | Časozberné video od dreva.sk
Odolnosť a nenáročná údržba
Plechové domčeky sú obzvlášť odolné voči nepriaznivému počasiu. Plech je mimoriadne odolný voči vode, preto domčeky znášajú dlhodobé vystavenie dažďu a snehu bez následkov. Farba na plechu je navyše upravená tak, aby odolávala UV žiareniu. Plech je v podstate bezúdržbový materiál - nepotrebuje žiadne špeciálne ošetrovanie, brúsenie či nátery ako drevené stavby.
Možnosti využitia v záhrade
Vďaka svojej odolnosti a variabilite ponúka tento domček široké možnosti využitia:
- Sklad na náradie: Bezpečné uskladnenie kosačiek, fúrikov, hnojív a ručného náradia.
- Dielňa či kutilský kútik: Priestor na opravy a výrobu drobných predmetov.
- Ihrisko pre deti: Menší priestor na úkryt či hranie.
- Letná kuchyňa: Využitie ako zázemie pre letné stolovanie.
Ak hľadáte záhradný domček, ktorý bude presne zodpovedať vašim požiadavkám, plechový variant je ideálnou voľbou z hľadiska pomeru ceny a kvality. Vďaka rýchlej inštalácii a možnosti demontáže je navyše mimoriadne flexibilným prvkom v každej záhrade.
tags: #plechovy #zahradny #domcek #257x205x202